On September 8, we moved out of our home of the last eighteen years and into a rental so that construction could commence on a remodel we’ve been planning since 2017.
Start of Construction: September 21, 2020
Estimated Project Duration: 8-10 months
Before
We’ve done relatively little to the exterior of the house since we moved in almost twenty years ago. The living room, front bathroom, master suite, part of the dining room, and the smaller of the two bedrooms will remain when the project is complete. The kitchen, garage, and larger bedroom will be replaced by a great room, mud/laundry room, and a larger garage, with additional bedrooms and a play area upstairs.


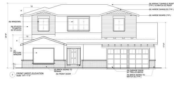
After
These drawings are taken from the construction plans approved by the city.


Construction Galleries
- Preparations and Moving Out
- Rental